D217 Apartman
Projekt
Dorottya Palace Apartman
Tervező
Koródi Eszter Eliza
Dátum
2025
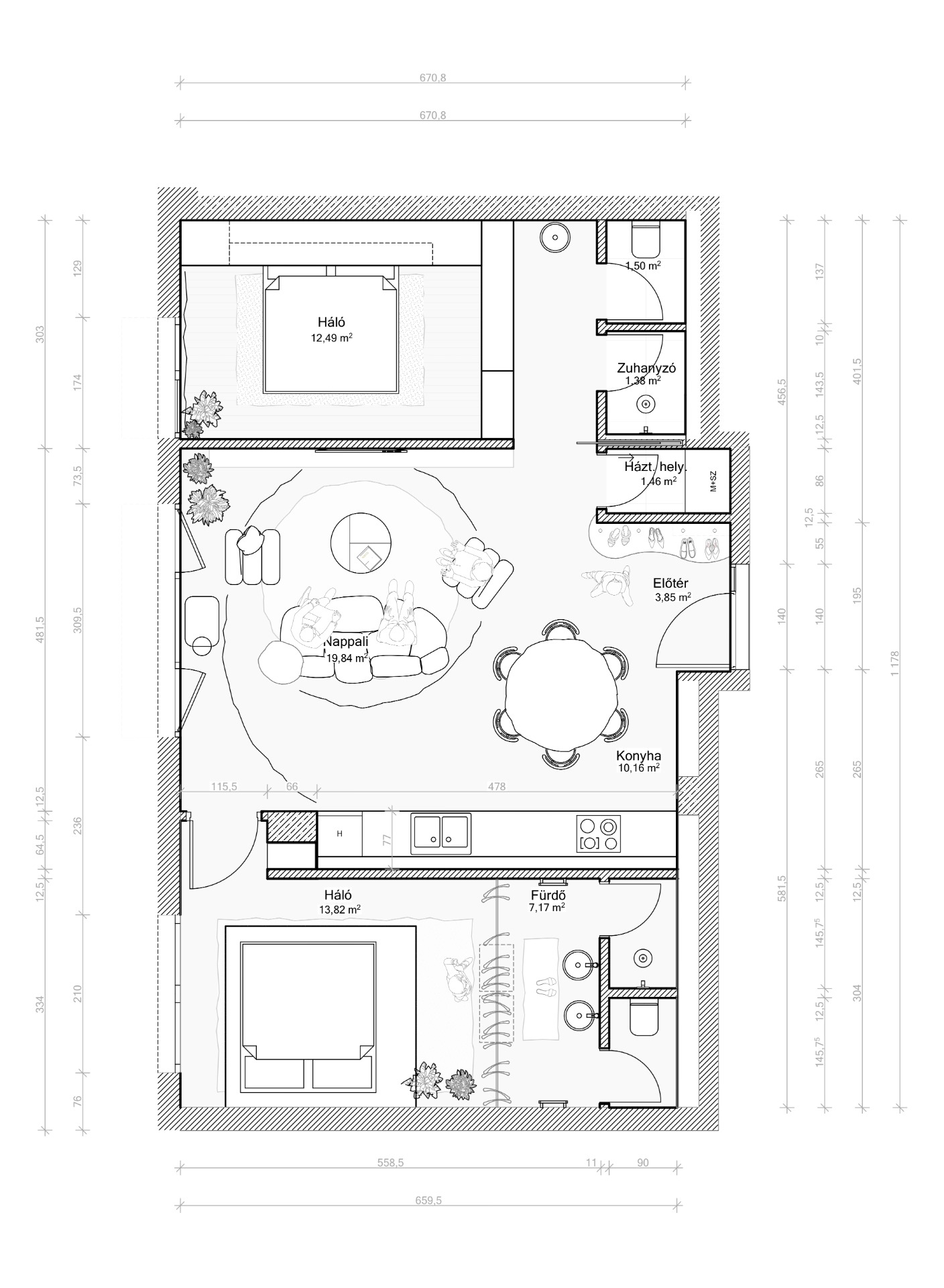
Egy fiatal divatszakmában dolgozó lány vágyaira lett tervezve a D217 Apartman. Az álma, hogy olyan showroom hangulatot idéző élettérben lakhasson, ahol a ruhák és cipők, divatmagazinok, mint kiállítási tárgyként jelennek meg a terekben.
Anyagok közül a valódi fémes felületek, természetes kőburkolatok, bőr és szőrmés kárpitok a kedvencei.

Tervezési feladat:
KONCEPCIÓ
ALAPRAJZI VERZIÓK
KIVITELI TERV
A tervezési feladatomat képezte egy olyan koncepció megalkotása, amit a megrendelő teljes mértékben önmagának érez.
A lakás adottságait az ő fiatalos életmódjához igazítottam.
És végül minden vágyát és elképzelését kiviteli tervcsomag formájában a rendelkezésére bocsájtottam.

